389 m² großes Grundstück zum Verkauf zwischen Sant Feliu de Guíxols und Sant Pol.
Die wichtigsten Merkmale des grundstück
- Außenliegend
Was Sie über dieses grundstück wissen müssen
Lucas Fox präsentiert dieses Grundstück zum Verkauf in einer unschlagbaren Lage, da es sich in einer privilegierten Gegend von Sant Feliu de Guíxols befindet, in der Nähe aller Dienstleistungen und mit einfachem Zugang zum Strand und zum Stadtzentrum.
Da es sich außerdem um ein städtisches Grundstück mit der Möglichkeit zum Bau von Häusern handelt, bietet es eine großartige Gelegenheit für diejenigen, die in den Bau von Häusern in dieser begehrten Gegend der Costa Brava investieren möchten. Dies ist eines der wenigen verfügbaren städtischen Grundstücke mit der Möglichkeit, in dieser privilegierten Gegend von Sant Feliu de Guíxols Häuser zu bauen.
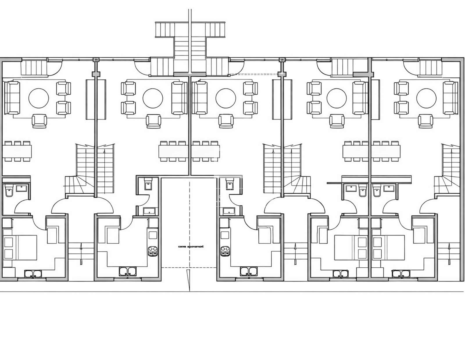
Es besteht ein Projekt zum Bau von fünf Einfamilienhäusern auf zwei Etagen (Erdgeschoss, Obergeschoss) und Parkplatz mit insgesamt jeweils 123 m² bebauter Fläche ohne Parkplatz.
Dies ist eine großartige Investitionsmöglichkeit für Bauunternehmen und Architekturbüros, die Wohnungen in einer der besten Gegenden der Costa Brava bauen möchten.
Für weitere Informationen zu diesem zum Verkauf stehenden Grundstück kontaktieren Sie uns bitte über unsere Website oder rufen Sie uns unter der angegebenen Telefonnummer an. Gerne beantworten wir alle Ihre Fragen und organisieren auf Wunsch eine Besichtigung der Immobilie.
Sonderausstattung
Ausrüstung
- Wasser
- Elektrizität
- Kanalisation
- Erdgas
- Straßenbeleuchtung
- Gehwege
Sant Feliu de Guíxols, Costa Brava: Lage und Standort dieser Immobilie
Dieses Grundstück liegt 10 Minuten von Platja d'Aro, 30 Minuten von Girona und 1 Stunde und 15 Minuten von Barcelona entfernt.
Energieausweis des Objekts
Energy Certificate : In process
Ähnliche Immobilien Sant Feliu de Guíxols
Nicht genau das, wonach Sie suchen?


























































