Elegantes Stadthaus im Golden Park, Jávea – Nur wenige Gehminuten vom Arenalstrand entfernt
Die wichtigsten Merkmale der wohnung
- Terrasse
- Schwimmbad
- Garten
- Stadtansichten
- Offene Küche
- Klimaanlage
- Heizung
- Eingerichtete Küche
- Einbauschränke
- Doppelverglasung
- Begehbarer Kleiderschrank
- Balkon
- Aussicht
- Abstellraum
- Abgeschlossene Wohnanlage
- Gebäudeplan 177m²
Was Sie über dieses wohnung wissen müssen
Dieses geräumige Reihenhaus befindet sich in der begehrten Wohnanlage Golden Park in Jávea und bietet die perfekte Mischung aus Komfort, Bequemlichkeit und mediterranem Lebensstil.
Das Anwesen erstreckt sich über drei Etagen und bietet durchgehend helle und großzügig geschnittene Räume. Im Erdgeschoss befinden sich ein einladender Eingangsbereich, ein offener Wohn- und Essbereich mit Zugang zu einem privaten Garten sowie eine gut ausgestattete Küche – ideal für den Alltag und zum Bewirten von Gästen.
Im Obergeschoss öffnen sich die Schlafzimmer sowohl auf der Ost- als auch auf der Westseite zu privaten Terrassen, sodass Sie den ganzen Tag die Sonne genießen können.
Die Bewohner befinden sich in einer sicheren, abgeschlossenen Wohnanlage und profitieren von wunderschön gepflegten Gemeinschaftsgärten und einem großen Swimmingpool, der sich perfekt zum Entspannen und für Freizeitaktivitäten eignet.
Dieses Reihenhaus liegt in fußläufiger Entfernung zu allen Annehmlichkeiten und nur einen kurzen Spaziergang vom Sandstrand Arenal entfernt und vereint eine unschlagbare Lage mit Komfort und Qualität.
Ob Sie einen festen Wohnsitz oder ein luxuriöses Ferienhaus suchen, diese Immobilie ist eine ausgezeichnete Wahl für ganzjährigen Genuss in einer der begehrtesten Gegenden der Costa Blanca.
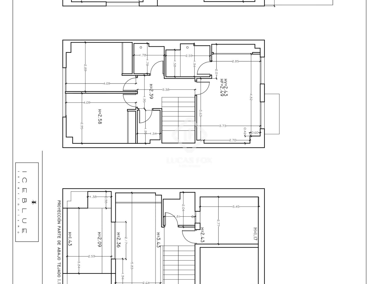
Grundriss der wohnung
Erdgeschoss
- Offene Küche und Essbereich
- Wohnzimmer mit Zugang zur Terrasse
- Begehbarer Kleiderschrank mit Stauraum
- Gästetoilette
Mittlere Etage
- 3 Doppelzimmer mit Einbauschränken
- 2 Badezimmer (1 en-suite)
Obergeschoss
- Viertes Schlafzimmer mit Zugang zu einer Terrasse
- Duschraum
- Terrasse mit Abstellraum/Büro
Jávea, Costa Blanca: Lage und Standort dieser Immobilie
Die Lage ist äußerst zentral: Ein großer Supermarkt ist weniger als 300 Meter entfernt, ebenso wie Ärztezentren, Geschäfte, Banken und Restaurants. Der Sandstrand Arenal ist in 10 Minuten zu Fuß erreichbar, und auch die Altstadt und der Hafen sind bequem mit dem Bus zu erreichen.
In der Altstadt von Jávea befindet sich der zentrale Busbahnhof mit regionalen und nationalen Verbindungen, die Wochen- und Tagesmärkte sowie verschiedene Geschäfte und Restaurants.
In unmittelbarer Nähe des Komplexes befinden sich ein Tennisclub, eine Go-Kart-Bahn und verschiedene andere Sportanlagen.
Die Zufahrt zur Bundesstraße und zur Autobahn ist unkompliziert und in unmittelbarer Nähe.
Eine öffentliche Schule ist fußläufig erreichbar, und die beiden internationalen Schulen XIC und LAUDE Lady Elizabeth sind nur eine kurze Autofahrt entfernt.
Von dieser Unterkunft aus sind alle Einrichtungen bequem zu Fuß erreichbar.
Energieausweis des Objekts
Energy consumption D : 96kWh/m²/year
Emissions D : 20kg CO₂/m²/year
- 2
- 3
- 4
- 5
- 6
- 7
- 8
- 9
- 10
- 11
- 12
- 13
- 14
- 15
- 16
- 17
- 18
- 19
- 20
- 21
- 22
- 23
- 24
- 25
- 26
- 27
- 28
- 29
- 30
- 31
- 32
- 33
- 34
- 35
- 36
- 37
- 38
- 39
- 40
- 41
- 42
- 43
- 44
- 45
- 46
- 47
- 48
- 49
- 50
- 51
- 52
- 53
- 54
- 55
- 56
- 57
- 58
- 59
- 60
- 61
Ähnliche Immobilien Jávea
Nicht genau das, wonach Sie suchen?













































































































































































































































