Grundstück von 524 m² mit genehmigtem Projekt zum Bau eines Hauses von 390 m².
Was Sie über dieses grundstück wissen müssen
Wir präsentieren Ihnen dieses prächtige 524 m² große Grundstück in Can Teixidó, einer der begehrtesten und exklusivsten Wohngegenden der Region Maresme. Die erstklassige Lage bietet Meerblick und ein gehobenes Wohnumfeld – ideal für den Bau eines exklusiven Hauses, nur 15 Minuten von Barcelona und 5 Minuten vom Strand entfernt.
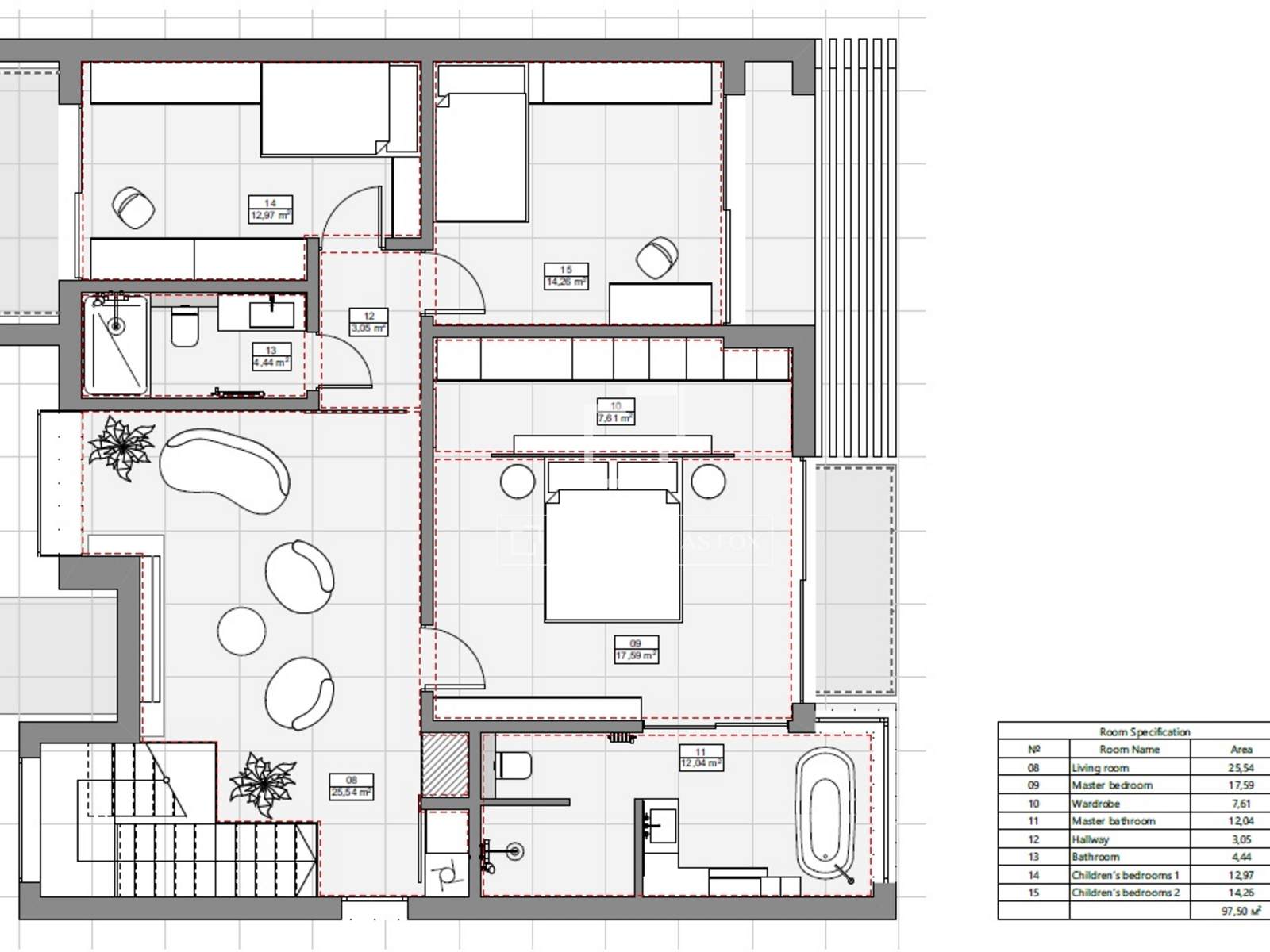
Für das Grundstück liegt eine Baugenehmigung vor und es besteht die Möglichkeit, das bereits geplante Projekt umzusetzen: ein elegantes 390 m² großes Haus mit vier Schlafzimmern, vier Badezimmern, privatem Pool und Garage mit Platz für drei Autos.
Das Projekt wurde nach hohen Energieeffizienzkriterien konzipiert und hat in Bezug auf Verbrauch und Emissionen die Bewertung A erreicht, wodurch Komfort, Nachhaltigkeit und Energieeinsparungen gewährleistet werden.
Das Grundstück liegt nur zwei Gehminuten vom Padelclub entfernt, in einer ruhigen und sicheren Umgebung, mit guter Anbindung an alle Dienstleistungen, internationale Schulen und die wichtigsten Verkehrswege.
Eine einmalige Gelegenheit, Ihr Traumhaus an einem der besten Standorte in Alella zu bauen.
Alella, Barcelona: Lage und Standort dieser Immobilie
Alella zählt zu den exklusivsten Orten der Region Maresme, nur 15 Minuten von Barcelona entfernt, und ist bekannt für seine Weinberge, die malerische Natur und die hohe Lebensqualität. Die Wohnanlage Can Teixidó besticht durch Sicherheit, Privatsphäre und Prestige und bietet ein gehobenes Wohnumfeld. Die Nähe zu Strand, Yachthäfen, internationalen Schulen und Einkaufsmöglichkeiten macht diese Gegend zu einem idealen Standort für ein ruhiges Leben, ohne auf die Annehmlichkeiten der Stadt verzichten zu müssen.
AICAT: 13225
API: 4089 
Ähnliche Immobilien Maresme Küste
Nicht genau das, wonach Sie suchen?































































































